Close
Back to top

–  LOOP –

 

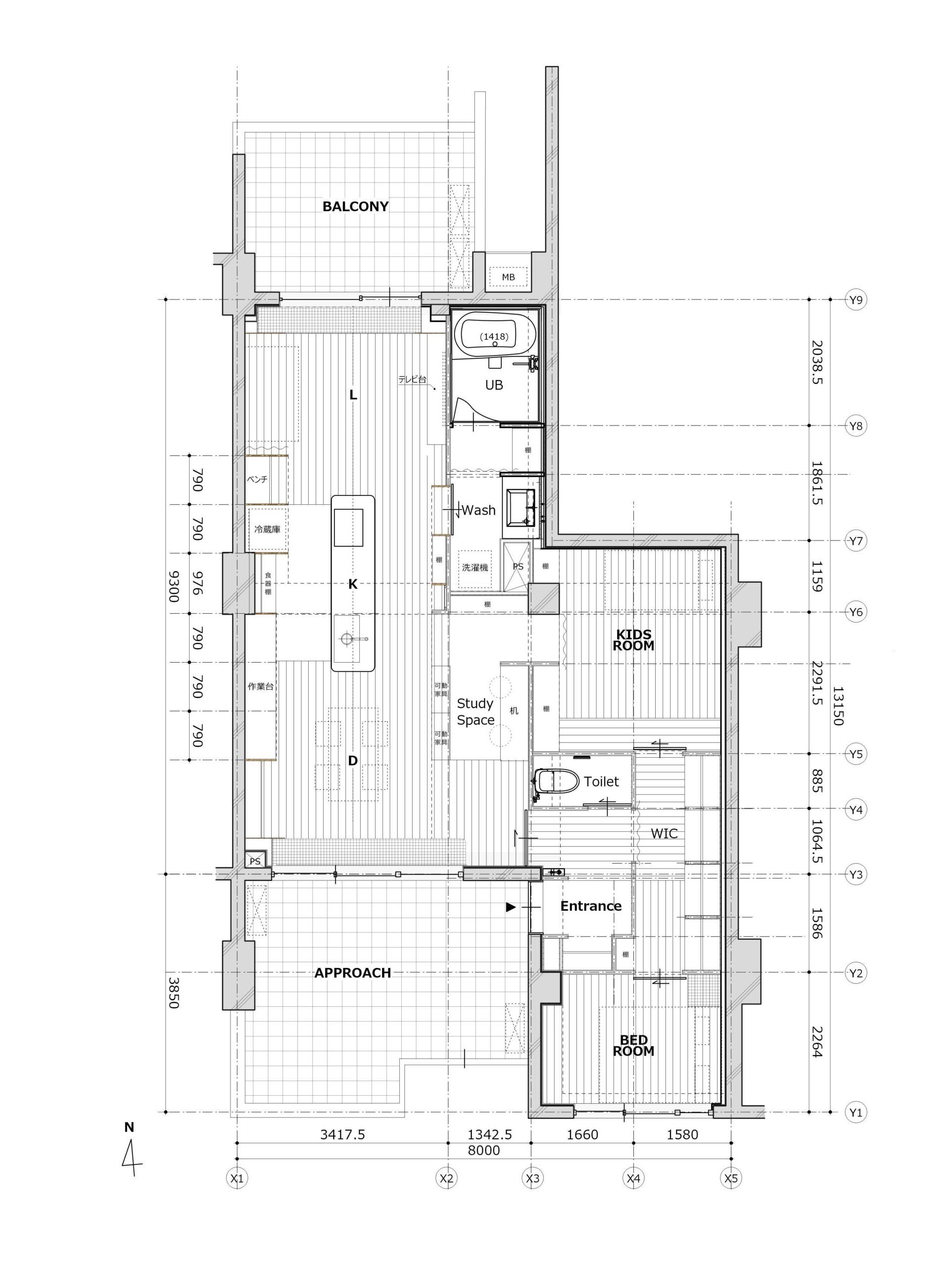
南北にテラスと内外を繋げる細縁を持つ、風の抜けるLKD。

アイランドキッチンとトイレを軸に∞の軌跡を描く、動きを妨げない動線計画。

可動家具と無数の袖壁が取り付く、人や物の居場所となる境界面。

繋がりや開放感と、それぞれの活動を受け止める受容力を併せ持った、人やその声、風と空気、生活の品々が巡り続ける住環境の提案。

 

共同設計者/垣中智博

施工/ROOVICE

所在地/神奈川県川崎市

主要用途/専用住宅

構造/RC造

施工床面積/75㎡

Photo by STUDIOONK

Tags: